• <li id="c0ccc"></li>
    <tt id="c0ccc"></tt>
    <li id="c0ccc"><table id="c0ccc"></table></li>
  • <li id="c0ccc"></li>
  • <li id="c0ccc"></li>
  • <li id="c0ccc"></li><li id="c0ccc"></li>
    <li id="c0ccc"><table id="c0ccc"></table></li>
    全國免費咨詢電話:400-811-7869
    您當前所在位置是:回轉窯網>>新聞資訊>>文章內容
    還原鐵回轉窯耐火材料砌筑需注意的問題

            在進行窯爐焙燒時,還原鐵回轉窯耐火材料的施工要求有許多,其中較主要的就屬砌筑,在此過程中需要都需要注意哪些問題,請看以下分析:
            還原鐵回轉窯砌筑多選用干砌,環縫及縱縫都不應用泥漿,磚和磚之間盡可能密實。這樣就可以減輕濕砌操作中因耐火磚和耐火泥特性較差,長周期運行后因冷卻收縮不均勻而產生的較大磚縫、磚松動、抽沉或脫落現象的產生。
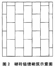
    圖2砌磚錯縫砌筑        還原鐵回轉窯耐火磚的排布,應用的是橫向環形砌,兩個相鄰轉圈磚縫交錯砌筑(如圖2),需要嚴格對不同厚度磚進行分類選擇。事實上,耐火磚按要求,在出廠前就需要按照其厚度的不同進行不同顏色的標識,便于施工時的準確選擇。
            合門應用加工合門磚及鋼片。合門磚工作面不需要加工,其余切割必須符合要求。當需要若干合門磚時,不可將其在軸向或環向連續并排應用,需要利用標準的主磚對其進行間隔砌筑。在利用鋼板鎖縫時,每圈應用鋼片數較多3個,每條縫只許應用一片鋼片,鋼片的一邊需磨尖,其厚度應小于2mm。如果需要若干鋼片來鎖磚,同樣需要將它們均勻分布在整個合門磚區。同時需要盡可能避免在合門磚邊打入鋼片。
            以上操作中,還原鐵回轉窯砌磚的固定:上半圈磚用砌磚機固定,同時此過程不需要轉窯,施工起來比較快,且高效、安全。
            更多的還原鐵回轉窯相關介紹詳見:http://www.t3130.com/news/

    創建時間 2015-10-27 來源 回轉窯網 瀏覽
    主營產品節能球磨機
    環保石灰窯 破碎機
    回轉窯設備 選礦設備
    網站首頁 公司簡介 產品中心 新聞資訊 技術資料 行業知識 服務中心 聯系我們 html-xml
    推薦新品:專業回轉窯生產廠家 Copyright © 河南豫暉礦山機械有限公司 版權所有 河南省鄭州市化工西路
    全國免費咨詢電話:400-811-7869 電話:0371-55018888 手機:13803857310(白經理) 豫ICP備10209222號-2 亚洲中文字幕男人的天堂喷水